Добро пожаловать на http://vipplan.ru

Випплан Карасук - это тысячи проектов домов в нашем каталоге!

Вы всегда сможете найти для себя проект дома вашей мечты! Даже если этого не случилось, мы готовы в любую минуту предложить проект индивидуального дома.

Забыли пароль?
Вы еще не регистрировались?

Перейдите по ссылке ниже на страницу регистрации.

Регистрация...

Внимание!!!

В проектную документацию могут быть внесены изменения любой сложности, в соответствии в Вашими пожеланиями!

Полезные статьи

Системы утепления фасада

Основные тепловые потери происходят через стены, фундамент и крышу. Уменьшить их можно с помощью утеплителя, создав внутри дома оптимальный для жизни климат, с достаточно ровным температурным режимом и низкой влажностью....

Выбор проекта дома в Карасуке. Типовой или индивидуальный?

Строительство дома начинается с выбора проекта. От него будет зависит удобство, комфорт и функциональность Вашего будущего дома. Какой проект выбрать? В каталоге проектов домов VIPplan Карасук предоставлен огромный выбор проектов на любой вкус и кошелек. В итоге выбор сводится к покупке типового проекта дома или заказа индивидуального проекта. Для упращения задачи, расскажем о каждом варианте по отдельности...

Проекты домов и коттеджей > Каталог проектов домов > Проект комфортного одноэтажного дома с просторной террасой Vg2415

Проект комфортного одноэтажного дома с просторной террасой Vg2415

Проект комфортного одноэтажного дома с просторной террасой
Зарегистрируйтесь

Проект № Vg2415


Техническое описание
Общая площадь: 151.09 м2
Жилая площадь: 93.22 м2
Высота здания: 7.5 м
Размеры дома: 12.44м×17.64м
Кол-во комнат: 5
Цокольный этаж: нет
Гараж: нет
Мансарда: нет

Kонструкция
Фундамент: Монолитная ж/б плита
Перекрытия: Деревянные балки перекрытия
Материал стен: Газобетон

Архитектурный раздел
Конструктивный раздел
АР+КР - 56 000 (Со скидкой 20%)
Проект одноэтажного дома с размерами здания 12,44 x 17,64 м. Фундамент - монолитная ж/б плита. Наружные стены - пароизоляционная мембрана, пенобетонный блок, утеплитель и отделка фасадной штукатуркой. Внутренние стены - пенобетонный блок. Перегородки - пенобетонный блок. Пол этажа - пол по фундаментной плите. Чердачное перекрытие - деревянные балки перекрытия. Крыша - многоскатная. Кровля - металлочерепица. Окна - металлопластиковые.
Генплан застройки участка / Паспорт проекта 7000 руб / 10000 руб
Инженерный раздел (полный) 75500 руб
Смета на строительство 37750 руб
Теплотехнический расчет материалов стен Бесплатно
Стоимость проекта со незначительнми изменениями 66200 руб
Стоимость проекта со средними изменениями* 77600 руб
Стоимость проекта со значительными изменениями** 80600 руб

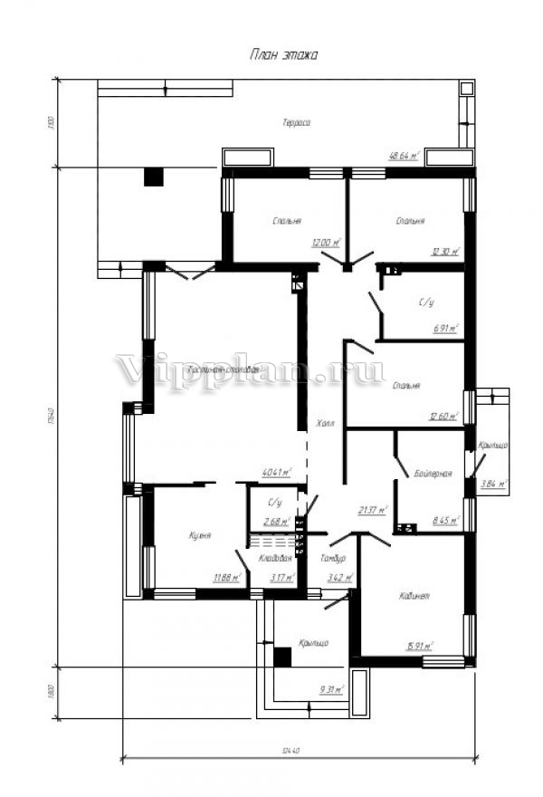
План первого этажа


Тамбур - 3,42 кв м
Холл - 21,37 кв м
Кабинет - 15,91 кв м
Бойлерная - 8,45 кв м
Спальня - 12,60 кв м
С/у - 6,91 кв м
Спальня - 12,30 кв м
Спальня - 12,00 кв м
Гостиная - 40,41 кв м
Кухня - 11,88 кв м
С/у - 2,68 кв м
Кладовая - 3,17 кв м
Проект комфортного одноэтажного дома с просторной террасой Проект комфортного одноэтажного дома с просторной террасой Проект комфортного одноэтажного дома с просторной террасой Проект комфортного одноэтажного дома с просторной террасой
Внесение изменений и привязка к участку строительства

В любой из проектов от компании VIPplan - Карасук по вашему желанию могут быть внесены изменения в материалы стен, материалы наружной отделки дома, а также будет произведена адаптация проекта под конкретный регион строительства (с учетом грунтов региона, геологических особенностей вашего участка и местных климатических условий) - БЕСПЛАТНО !!! (кроме проектов со скидкой и проектов наших партнеров).

Любой из проектов, размещенных на сайте karasuk.vipplan.ru мы можем выполнить из требуемых вам строительных материалов: ячеистый бетон (газобетон, пеноблок), керамоблок, кирпич, шлакоблок, бетонный блок, дерево (брус, клееный брус), каркасная технология (деревянный каркас, металлокаркас (ЛСТК)).

Фасад дома и его наружную отделку так же возможно выполнить с применением различных облицовочных материалов: структурной штукатурки, (с утеплителем и без), сайдингом (пластиковый или металлосайдинг), фиброплитами, кирпича.

 
6 Избранные
проекты

Доставка проектов по России: Москва (Московская область), Санкт-Петербург (Ленинградская область), Краснодар, Ростов-на-Дону, Ставрополь, Сочи, Волгоград, Новосибирск, Белгород, Брянск, Воронеж, Саратов, Хабаровск, Астрахань, Нальчик, Владикавказ, Екатеринбург, Тюмень, Самара, Нижний Новгород, Казань, Пермь, Уфа, Челябинск, Красноярск, Ханты-Мансийск, Иркутск, Курган, Оренбург, Омск, Томск, Барнаул, Новокузнецк, Кемерово, Абакан, Чита, Якутск, Южно-Сахалинск, Петропавловск-Камчатский и страны ближнего зарубежья: Белоруссия, Украина, Казахстан