Проект дома от VIPplan - Карасук содержит в себе все необходимое для получения разрешения на строительство и проведения строительных работ.
Базовым считается Архитектурно-строительный проект (состоит из Архитектурного и Конструктивного разделов).
Дополнительно по желанию Заказчика может быть изготовлен генплан застройки участка, инженерный раздел и смета на строительство (включает объемы и стоимости работ и материалов). Подобный комплект чертежей позволит Вам произвести согласование проекта в местной архитектуре и произвести все строительные работы и в то же время проект не перегружен ненужными общим данными, что не вызывает дополнительного удорожания проектной документации. При заказе проекта Вы сами можете подобрать именно тот комплект проекта который считаете нужным для себя.
Архитектурно строительный проект состоит из:
- Архитектурного раздела, включающего следующие чертежи: планировки дома (планы этажей), фасады, разрезы, визуализации в которых указаны точные геометрические параметры дома, его конструкций и их элементов.
- Конструктивного раздела, включающего следующие чертежи: конструкции фундамента, перекрытий, кровли, отдельные конструктивные узлы и детали, элементы вентиляции (вентканалы и дымоходы), общие данные
Инженерный проект (чаще всего изготавливается дополнительно) состоит из:
- Системы электроснабжения (разводка освещения, разводка силовых сетей)
- Система отопления (схема разводки отопления, обвязка котла и т.д.).
- Системы водоснабжения и канализации (схема разводки водоснабжения и канализации).
Смета (на строительство "коробки дома") (изготавливается дополнительно) выполняется по разделам АР и КР.
Разделы также содержат общие данные, описания, а также укрупненную ведомость (спецификацию) материалов, оборудования и других элементов конструкций дома.
Компания VIPplan - Карасук производит адаптацию проектов домов (кроме проектов со скидкой) к геологическим и климатическим условиям.
Возможно внесение изменений в проект дома по пожеланиям Заказчика в любой из проектов предоставленных на сайте, а так же мы можем изготовить индивидуальный проект дома на заказ. В том случае когда выбор планировочных решений и вариантов внешней отделки является затруднительным - эскизный проект может предшествовать стадии индивидуального проектирования.
I Архитектурный раздел проекта:
1.Титульный лист

2. Общие данные

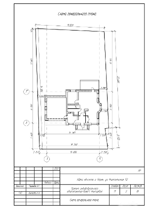
3. Генплан застройки участка (изготавливается дополнительно)

4. План этажа 1

5. План мансарды

6. Экспликация полов

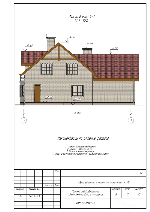
7. Фасад 1

8. Фасад 2

9. Фасад 3

10. Фасад 4

11. Разрез 1

12. Разрез 2

13. План кровли

14. Перемычки

15. 3D виды

II Конструктивный раздел проекта:
1. Титульный лист

2. Ведомость рабочих чертежей. Общие данные.

3. План фундамента

4. Кладочный план на отм. 0

5. Кладочный план на отметке +3

6. План плит перекрытия

7. Узлы плит перекрытия

8. Схема основных элементов крыши

9. Схема основных элементов крыши 3D вид

III Паспорт проекта:
1. Титульный лист

2. Ведомость комплекта

3. Схема генерального плана

4. План 1-го этажа

5. План мансарды

6. Фасад 1

7. Фасад 2

8. Фасад 3

9. Фасад 4

10. 3D виды - 1

11. 3D виды - 2
