Добро пожаловать на http://vipplan.ru

Випплан Карасук - это тысячи проектов домов в нашем каталоге!

Вы всегда сможете найти для себя проект дома вашей мечты! Даже если этого не случилось, мы готовы в любую минуту предложить проект индивидуального дома.

Забыли пароль?
Вы еще не регистрировались?

Перейдите по ссылке ниже на страницу регистрации.

Регистрация...

Внимание!!!

В проектную документацию могут быть внесены изменения любой сложности, в соответствии в Вашими пожеланиями!

Полезные статьи

Уклон кровли дома

Чтобы вода быстрее уходила с кровли Вашего дома, скатам необходимо придать уклон, который выражающийся в процентах или градусах и измеряющийся геодезическими инструментами. Уклон кровли обозначает угол наклона ската к горизонту. Чем больше уклон, тем круче крыша. У новомодных зданий наклон кровли делают не очень большим....

Печи и камины в частном доме

Спросите любого человека, и вы поймете, что каждый человек мечтает иметь свой собственный дом, который он сможет обустроить так, как ему хочется. Этот дом будет полон уюта, тепла, света и комфорта, а главное, что, придя с работы, человек сможет запросто отдохнуть у своего очага.  Нет никакой альтернативы перед выбором печи или камина. Эти две вещи не сможет  заменить ни искусственный свет, ни солнечное освещение. Камин и печь, с древности, считаются предметом роскоши. Ни один большой дом не может обойтись без них, поскольку если удастся сесть и посидеть перед этим местом, то долго нельзя будет...

Проекты домов и коттеджей > Каталог проектов домов > Современный уютный коттедж с мансардным этажом Vg1342

Современный уютный коттедж с мансардным этажом Vg1342

Современный уютный коттедж с мансардным этажом
Зарегистрируйтесь

Проект № Vg1342


Техническое описание
Общая площадь: 141 м2
Жилая площадь: 71 м2
Высота здания: 9 м
Размеры дома: 10.16м×13.9м
Кол-во комнат: 5
Цокольный этаж: нет
Гараж: нет
Мансарда: есть

Kонструкция
Фундамент: Монолитная ж/б плита
Перекрытия: Монолитная ж/б плита
Материал стен: Газобетон

Архитектурный раздел
Конструктивный раздел
Инженерный раздел
Смета на строительство
АР+КР - 52 000 (Со скидкой 20%)
АР+КР+ИР - 101 350 (Со скидкой 50%)
Проект индивидуального однотажного жилого дома с мансардой с размерами здания 10,16 x 13,90 м. Наружная отделка здания – панели «Ханьи» Фундамент – монолитная ж/б плита (под всей площадью дома). Наружные стены – газобетонный блок, плиты базальтовые плотностью , влагозащитная паропроницаемая мембрана Изоспан А, горизонтальный профиль из оцинкованного металла , вертикальный профиль , панели "Ханьи" Внутренние стены - из газобетонных блоков. Перегородки – из газобетонных блоков. Пол первого этажа - монолитная ж/б плита.. Межэтажное перекрытие- монолитная ж/б плита. Крыша металлочерепица. Кровля – двускатая. Окна - металлопластиковые, выполненные по индивидуальному заказу.
Генплан застройки участка / Паспорт проекта 7000 руб / 10000 руб
Инженерный раздел (полный) 49350 руб (70500 руб)
Смета на строительство 26438 руб (35250 руб)
Теплотехнический расчет материалов стен Бесплатно
Стоимость проекта со незначительнми изменениями 61450 руб
Стоимость проекта со средними изменениями* 72100 руб
Стоимость проекта со значительными изменениями** 74900 руб

План первого этажа


Тамбур — 3,26 м2
Холл — 6,37 м2
Спальня — 11,96 м2
Бойлерная — 6,66 м2
Гостиная — 29,39 м2
Кухня — 11,43 м2
Гардероб — 1,40 м2
Кладовая — 2,13 м2
С/у — 1,69 м2

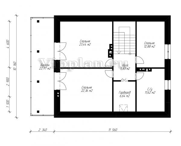
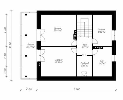
План мансардного этажа


Холл — 5,83 м2
Спальня — 23, 44 м2
Спальня — 12,88 м2
Спальня — 22,36 м2
С/у — 11,62 м2
Гардероб — 6,64 м2
Балкон — 22,77 м2
Современный уютный коттедж с мансардным этажом Современный уютный коттедж с мансардным этажом Современный уютный коттедж с мансардным этажом Современный уютный коттедж с мансардным этажом

Модификации проектов

Внесение изменений и привязка к участку строительства

В любой из проектов от компании VIPplan - Карасук по вашему желанию могут быть внесены изменения в материалы стен, материалы наружной отделки дома, а также будет произведена адаптация проекта под конкретный регион строительства (с учетом грунтов региона, геологических особенностей вашего участка и местных климатических условий) - БЕСПЛАТНО !!! (кроме проектов со скидкой и проектов наших партнеров).

Любой из проектов, размещенных на сайте karasuk.vipplan.ru мы можем выполнить из требуемых вам строительных материалов: ячеистый бетон (газобетон, пеноблок), керамоблок, кирпич, шлакоблок, бетонный блок, дерево (брус, клееный брус), каркасная технология (деревянный каркас, металлокаркас (ЛСТК)).

Фасад дома и его наружную отделку так же возможно выполнить с применением различных облицовочных материалов: структурной штукатурки, (с утеплителем и без), сайдингом (пластиковый или металлосайдинг), фиброплитами, кирпича.

 
6 Избранные
проекты

Доставка проектов по России: Москва (Московская область), Санкт-Петербург (Ленинградская область), Краснодар, Ростов-на-Дону, Ставрополь, Сочи, Волгоград, Новосибирск, Белгород, Брянск, Воронеж, Саратов, Хабаровск, Астрахань, Нальчик, Владикавказ, Екатеринбург, Тюмень, Самара, Нижний Новгород, Казань, Пермь, Уфа, Челябинск, Красноярск, Ханты-Мансийск, Иркутск, Курган, Оренбург, Омск, Томск, Барнаул, Новокузнецк, Кемерово, Абакан, Чита, Якутск, Южно-Сахалинск, Петропавловск-Камчатский и страны ближнего зарубежья: Белоруссия, Украина, Казахстан